Архитектурная концепция.
Этот проект — финальный, самый совершенный аккорд в симфонии двухэтажных домов AIR Loft. Достигнув площади в 168 м² и рекордной высоты мансардного этажа, он воплощает идеал семейного жилья, где безупречная организация уступает пальму первенства ощущению безграничного простора. Сохраняя фирменную архитектурную графику и кристально ясную планировку «распашонки», этот дом предлагает роскошь пространства, превращая каждую зону — от технического помещения до спальни на втором этаже — в по-настоящему масштабное и наполненное светом помещение.
КЛЮЧЕВЫЕ ОСОБЕННОСТИ,
которые вы полюбите
[01]
[02]
[03]
[04]
[05]
AIR Loft 2_198
площадь - 198,38 м²
планировка - 4 варианта
прямая сделка - от 7 940 000 ₽
в ипотеку - от 8 690 000 ₽
* Фундаментом этого масштабного дома служит проверенная технология — профилированный брус камерной сушки отборной кировской сосны. Для проекта таких размеров и сложности — это гарантия структурной целостности, минимальной усадки и безупречного микроклимата.

ВАШ ДОМ В ИДЕАЛЬНОЙ ПАЛИТРЕ
Чтобы вы могли сразу увидеть и оценить будущий дом, мы подготовили 8 тщательно проработанных вариантов цветовых решений. Каждый вариант — это гармоничная комбинация оттенков фасада, кровли, оконных конструкций и элементов отделки, подобранная нашими дизайнерами.
Готовые концепции. Вам не нужно тратить время на подбор и согласование цветов — мы предлагаем проверенные эстетичные решения.
Профессиональный подбор. Все сочетания гарантированно гармоничны, устойчивы к выцветанию и соответствуют актуальным тенденциям.
Легкий выбор. Просто выберите понравившийся образ из каталога — мы точно воспроизведем его при строительстве.
ВАРИАНТЫ ПЛАНИРОВОК
Первый этаж (апогей организации)
Вход через большое крыльцо → холл с гардеробной. Слева — техпомещение. Справа — просторнейшая гостевая комната с гардеробом. Далее — гостевой санузел, лестница с кладовой и вход в главное пространство дома — огромную кухню-гостиную с выходами на террасу.
Варианты второго этажа — кульминация комфорта в максимальном пространстве
Вариант А: «Великолепный мастер-сюит»
3 спальни
2 с/узла
Концепция: Абсолютный приоритет комфорта родителей в самом просторном исполнении.
Описание: Родительская зона здесь достигает своего апогея. Просторнейшая спальня, большая ванная комната и отдельный гардероб формируют истинную приватную резиденцию. Две светлые детские спальни с гардеробными нишами расположены обособленно и пользуются общей ванной. Идеально для семьи, где ценят уединение и незыблемость личного пространства в условиях максимального простора.
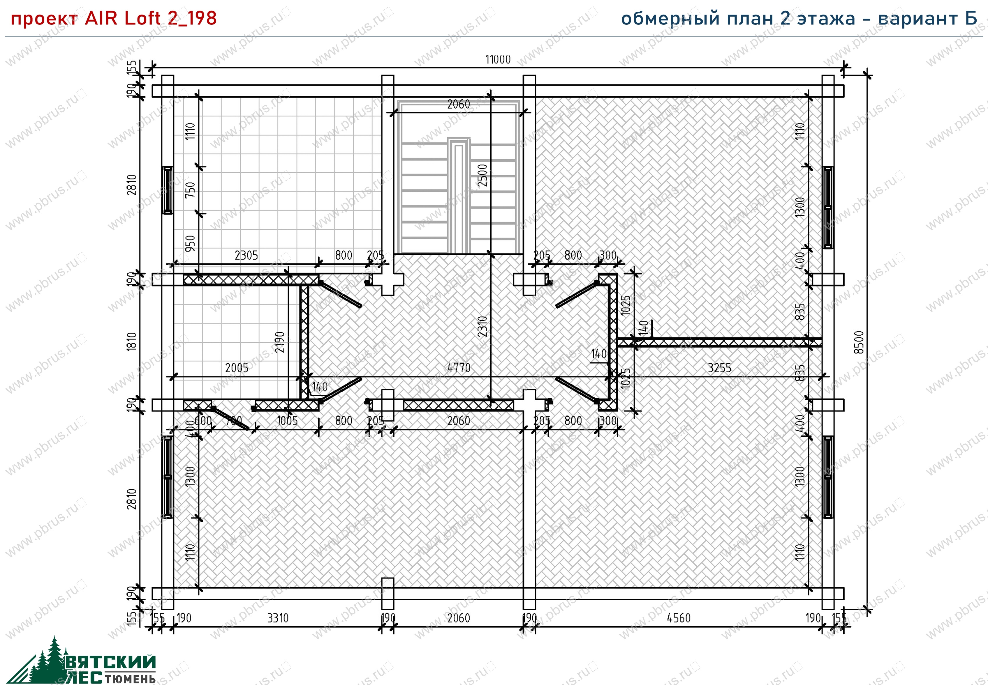
Вариант Б: «Идеальный баланс»
3 спальни
2 с/узла
Концепция: Беспрецедентно справедливое распределение метража и удобств для всех.
Описание: Эта планировка предлагает новый уровень равновесия. Родительская спальня с собственной душевой и очень большой гардеробной соседствует с двумя максимально просторными детскими спальнями, каждая — с увеличенной гардеробной. Общая ванная комната, самая большая в серии, окончательно решает вопрос утренних очередей. Выбор для семьи, где и взрослые, и дети хотят и могут иметь по-настоящему много личного пространства.
Вариант В: «Гардеробная и ванная как личный сюит»
3 спальни
2 с/узла
Концепция: Апогей организации и приватности в родительской зоне.
Описание: Организация личного пространства доведена до идеала. К просторной спальне примыкают два полноценных изолированных помещения: большая гардеробная и отдельная ванная комната. Это архитектурное решение обеспечивает безупречный порядок, максимальное удобство и абсолютное разделение функций. Детские комнаты получают значительный прирост площади, оставаясь светлыми и уютными. Выбор для самых взыскательных заказчиков.
Вариант Г: «Пространство равенства» (максимальная версия)
4 спальни
1 с/узел
Концепция: Бескомпромиссно демократичный подход для большой семьи. В своей финальной, самой масштабной версии этот вариант становится эталоном практичности.
Описание: Четыре полноценные спальни, каждая — с увеличенной гардеробной, и общая ванная комната создают гармоничную среду для жизни большой или многодетной семьи. В этой модели каждая комната достигает такого размера, что вопрос «кому достанется самая большая» теряет актуальность. Это решение, где равенство возможностей подкреплено щедрым метражом.
ОБЩЕЕ
для всех вариантов в модели 2_198
Как финальный и самый большой проект линейки, AIR Loft 2_198 предлагает не просто увеличенные площади, а качественно новый уровень жизни. Каждое помещение здесь — от гардеробной до спальни — спроектировано с расчетом на максимальный комфорт, свободную расстановку мебели и ощущение нестесненного простора, завершая эволюцию семейного дома в серии AIR Loft.
AIR Loft 2_198
AIR Loft 2_198
Дом от «Вятский лес-ТМН» это
[01]
НАТУРАЛЬНЫЙ ПРОФИЛИРОВАННЫЙ БРУС КАМЕРНОЙ СУШКИ
[02]
ТЕХНОЛОГИЯ, КОТОРАЯ ЭКОНОМИТ ВАШЕ ВРЕМЯ
— минимальное количество трещин и деформаций;
— крайне низкая усадка конструкции;
— безупречная геометрия для быстрого и точного монтажа;
— фундаментальная долговечность всей постройки.
[03]
БЕЗОПАСНАЯ ПОКУПКА В ИПОТЕКУ ЧЕРЕЗ ЭСКРОУ-СЧЕТА
[04]
АВТОРСКИЕ ПРОЕКТЫ С ПРОДУМАННОЙ ФИЛОСОФИЕЙ
ОПЦИОНАЛЬНЫЕ РАБОТЫ
для индивидуальной комплектации
В любом проекте можно выбрать объем необходимых к выполнению работ. Самостоятельно определить конфигурацию, соответствующую задачам и бюджету строительства.
[01]
Устройство внутренних стен/перегородок (каркас)
формирование внутренней планировки без изменения несущих конструкций
[02]
Утепление мансарды
базовая мера для энергоэффективного дома. Создание комфортного температурного режима в мансардном этаже и снижение будущих затрат на отопление
[03]
Утепление перекрытия пола
базовая мера для энергоэффективного дома, защита от холода, идущего от грунта
[04]
Утепление межэтажного перекрытия
повышение звукоизоляции между этажами и оптимизация теплового контура
[05]
Черновой пол (настил ЦСП)
создание прочного и ровного основания для укладки финишных напольных покрытий
[06]
Обшивка каркасных стен имитацией бруса
готовое эстетическое решение для внутренних стен, не требующее дальнейшей отделки

Выбирая «Вятский лес-ТМН», вы выбираете не просто дом, а надежную технологию, проверенные материалы и финансовую безопасность сделки
поможем выбрать проект и материалы,
ответим на вопросы










































