Архитектурная концепция.
HOT Loft 40 — это отправная точка, чистый и ясный аккорд, с которого начинается линейка бань. Взяв за основу, проверенную веками, абсолютно логичную и народную планировку «предбанник-моечная-парилка», мы облачили её в современную архитектурную форму. Этот проект доказывает, что подлинный комфорт и функциональность не требуют сложных решений. Высокие мансардные потолки, наполняющие даже компактное пространство воздухом и светом, и фирменная лаконичная эстетика серии Loft превращают традиционную баню в эталонный объект, где каждая деталь на своем месте, а атмосфера создается самой продуманной организацией пространства.
КЛЮЧЕВЫЕ ОСОБЕННОСТИ,
которые вы полюбите
[01]
[02]
[03]
[04]
[05]
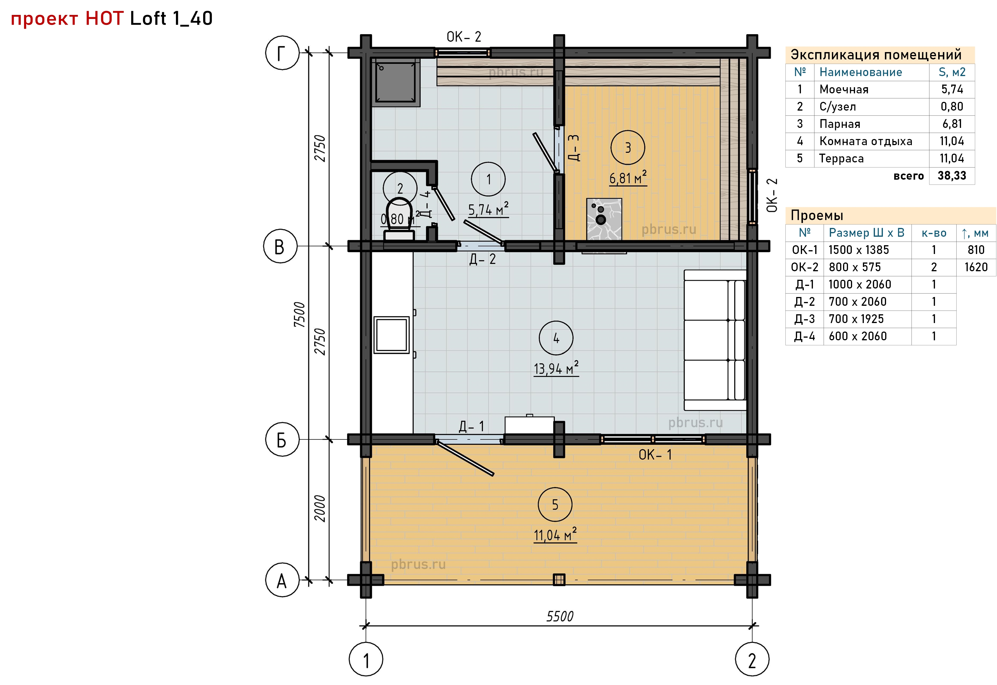
HOT Loft 40
площадь - 41.25 м²
стоимость - от 1 910 000 ₽
* Как и в домах AIR Loft, фундаментом философии HOT Loft является бескомпромиссное качество. Базовый вариант проекта выполняется из профилированного бруса камерной сушки отборного Кировского леса. Эта технология обеспечивает быструю сборку, минимальную усадку, отличную геометрию и оптимальный баланс между теплосбережением и паропроницаемостью. Для заказчиков, приоритетом которых является максимальная теплоэффективность, проект может быть реализован из бруса увеличенного сечения — 190 мм.

ПЛАНИРОВКА
[01]
Терраса (11,04 м²): просторная терраса, на которой удобно посидеть с чашкой чая после пара. Конструктивно готова к остеклению и утеплению для последующего расширения зоны отдыха.
[02]
Зона отдыха: переступив порог, вы попадаете в многофункциональное пространство. Справа - топка печи-камина. Прямо по курсу — место для обеденной группы или мягкой окна идеально впишется компактная кухонная стойка.
[03]
Моечная: проход из зоны отдыха ведет в просторную моечную. Здесь достаточно места для установки скамеек, душевой кабины или традиционной купели. Внутри компактно расположен санузел с унитазом.
[04]
Парная: финальный и главный пункт назначения. Достаточных размеров, чтобы установить печь необходимой мощности и двухъярусные полки для полноценного парения. Изолирована от моечной для сохранения правильного пара и температурного режима.
[01]
Терраса (11,04 м²): просторная терраса, на которой удобно посидеть с чашкой чая после пара. Конструктивно готова к остеклению и утеплению для последующего расширения зоны отдыха.
[02]
Зона отдыха: переступив порог, вы попадаете в многофункциональное пространство. Справа - топка печи-камина. Прямо по курсу — место для обеденной группы или мягкой окна идеально впишется компактная кухонная стойка.
[03]
Моечная: проход из зоны отдыха ведет в просторную моечную. Здесь достаточно места для установки скамеек, душевой кабины или традиционной купели. Внутри компактно расположен санузел с унитазом.
[04]
Парная: финальный и главный пункт назначения. Достаточных размеров, чтобы установить печь необходимой мощности и двухъярусные полки для полноценного парения. Изолирована от моечной для сохранения правильного пара и температурного режима.
HOT Loft 40 — там, где традиция встречает современный ритм жизни.
Баня от «Вятский лес-ТМН» это
[01]
НАТУРАЛЬНЫЙ ПРОФИЛИРОВАННЫЙ БРУС КАМЕРНОЙ СУШКИ
[02]
ТЕХНОЛОГИЯ, КОТОРАЯ ЭКОНОМИТ ВАШЕ ВРЕМЯ
— минимальное количество трещин и деформаций;
— крайне низкая усадка конструкции;
— безупречная геометрия для быстрого и точного монтажа;
— фундаментальная долговечность всей постройки.
[03]
АВТОРСКИЕ ПРОЕКТЫ С ПРОДУМАННОЙ ФИЛОСОФИЕЙ
HOT Loft — это наша собственная разработка. В каждый проект заложены уникальные фишки для вашего комфорта: светлые мансарды с высокими потолками, террасы с потенциалом расширения и планировки, которые легко адаптируются под жизнь вашей семьи. И все это — с четким расчетом под ипотечное финансирование.
АДАПТАЦИЯ ПОД ВАШ БЮДЖЕТ
Это поэтапный подход позволяет начать строительство с комфортного для вас бюджета, а в дальнейшем — модернизировать и дополнять проект без переплат за неиспользуемые на старте опции.
В нашем офисе вы сможете детально адаптировать проект под свои задачи и финансовые возможности. Мы предлагаем выбор:
[01]
конструктивные решения для перекрытий и стен
[02]
качество и стоимость отделочных и строительных материалов
[03]
степень наполнения инженерными системами
[04]
уровень готовности — от «теплого контура» до полной подготовки под чистовую отделку
ОПЦИОНАЛЬНЫЕ РАБОТЫ
для индивидуальной комплектации
В любом проекте можно выбрать объем необходимых к выполнению работ. Самостоятельно определить конфигурацию, соответствующую задачам и бюджету строительства.
[01]
Устройство внутренних стен/перегородок (каркас)
формирование внутренней планировки без изменения несущих конструкций
[02]
Утепление мансарды
базовая мера для энергоэффективного дома. Создание комфортного температурного режима в мансардном этаже и снижение будущих затрат на отопление
[03]
Утепление перекрытия пола
базовая мера для энергоэффективного дома, защита от холода, идущего от грунта
[04]
Утепление межэтажного перекрытия
повышение звукоизоляции между этажами и оптимизация теплового контура
[05]
Черновой пол (настил ЦСП)
создание прочного и ровного основания для укладки финишных напольных покрытий
[06]
Обшивка каркасных стен имитацией бруса
готовое эстетическое решение для внутренних стен, не требующее дальнейшей отделки

Выбирая «Вятский лес-ТМН», вы выбираете не просто дом или баню, а надежную технологию, проверенные материалы и финансовую безопасность сделки
поможем выбрать проект и материалы,
ответим на вопросы













