Архитектурная концепция.
HOT Loft 45 — это проект-трансформер, стирающий грань между классической баней и полноценным гостeвым домом. Он отвечает запросу современного владельца участка на универсальность и скорость. Архитектурная идея строится вокруг двух ключевых пространств: светлой, «парящей» веранды с панорамным остеклением и изолированной жилой комнаты. Это уже не просто банный комплекс, а автономный хаб для жизни и отдыха на земле, где можно с комфортом остановиться на выходные, принять гостей или жить на этапе строительства основного дома. Лаконичный силуэт и высокие мансардные потолки сохраняют фирменную ДНК линейки, добавляя ей социальной и практической многогранности.
КЛЮЧЕВЫЕ ОСОБЕННОСТИ,
которые вы полюбите
[01]
[02]
[03]
[04]
[05]
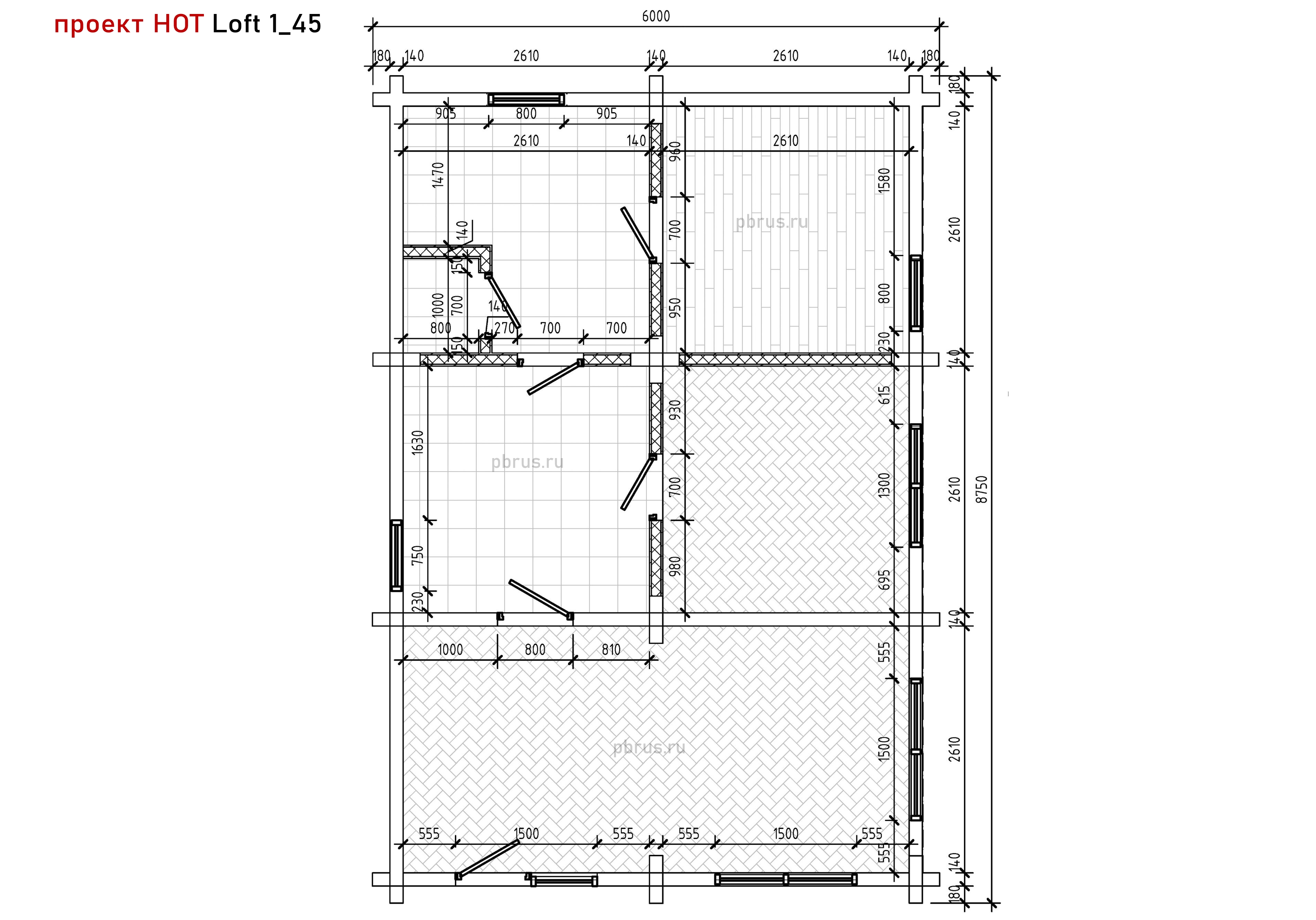
HOT Loft 45
площадь - 45.38 м²
стоимость - от 2 320 000 ₽
* Проект реализуется на базе проверенной технологии деревянного домостроения, обеспечивающей быстрый ввод объекта в эксплуатацию и здоровый микроклимат. Основной материал — профилированный брус камерной сушки сечением 140х140(145) мм. Для достижения повышенных показателей энергоэффективности, критически важных для всесезонного проживания, доступна опция строительства из бруса увеличенного сечения 190 мм. Утепленная веранда и жилая зона выполняются в едином тепловом контуре с основным срубом.

ПЛАНИРОВКА
[01]
Веранда (14 м²): просторное, залитое светом помещение с высоким потолком. Точка входа и главная рекреационная зона. Место для большого обеденного стола, мягкой мебели и отдыха с видом на природу.
[02]
Буфетная зона / Кухня: из веранды вы попадаете в помещение-распределитель. Здесь, в предусмотренной нише, организуется компактная кухня. Отсюда же — два входа: в жилую комнату и в банный блок.
[03]
Жилая комната: изолированное помещение, предназначенное для сна и отдыха. Может быть обставлена как полноценная спальня с кроватью и шкафами, обеспечивая приватность, которой лишены традиционные бани с общими зонами отдыха.
[04]
Банный блок: состоит из двух помещений:
- моечная: достаточного размера для размещения скамеек, душевой кабины или купели. Здесь же расположен санузел и топка печи, что безопасно и функционально.
- парная (6,81 м²): просторная, профессионального уровня, позволяющая с комфортом париться большой компанией. Рассчитана на установку мощной печи-каменки и многоярусных полков.
HOT Loft 45 — там, где банный день может плавно перейти в уик-энд, а уик-энд — в новое место для жизни.
Баня от «Вятский лес-ТМН» это
[01]
НАТУРАЛЬНЫЙ ПРОФИЛИРОВАННЫЙ БРУС КАМЕРНОЙ СУШКИ
[02]
ТЕХНОЛОГИЯ, КОТОРАЯ ЭКОНОМИТ ВАШЕ ВРЕМЯ
— минимальное количество трещин и деформаций;
— крайне низкая усадка конструкции;
— безупречная геометрия для быстрого и точного монтажа;
— фундаментальная долговечность всей постройки.
[03]
АВТОРСКИЕ ПРОЕКТЫ С ПРОДУМАННОЙ ФИЛОСОФИЕЙ
HOT Loft — это наша собственная разработка. В каждый проект заложены уникальные фишки для вашего комфорта: светлые мансарды с высокими потолками, террасы с потенциалом расширения и планировки, которые легко адаптируются под жизнь вашей семьи. И все это — с четким расчетом под ипотечное финансирование.
АДАПТАЦИЯ ПОД ВАШ БЮДЖЕТ
Это поэтапный подход позволяет начать строительство с комфортного для вас бюджета, а в дальнейшем — модернизировать и дополнять проект без переплат за неиспользуемые на старте опции.
В нашем офисе вы сможете детально адаптировать проект под свои задачи и финансовые возможности. Мы предлагаем выбор:
[01]
конструктивные решения для перекрытий и стен
[02]
качество и стоимость отделочных и строительных материалов
[03]
степень наполнения инженерными системами
[04]
уровень готовности — от «теплого контура» до полной подготовки под чистовую отделку
ОПЦИОНАЛЬНЫЕ РАБОТЫ
для индивидуальной комплектации
В любом проекте можно выбрать объем необходимых к выполнению работ. Самостоятельно определить конфигурацию, соответствующую задачам и бюджету строительства.
[01]
Устройство внутренних стен/перегородок (каркас)
формирование внутренней планировки без изменения несущих конструкций
[02]
Утепление мансарды
базовая мера для энергоэффективного дома. Создание комфортного температурного режима в мансардном этаже и снижение будущих затрат на отопление
[03]
Утепление перекрытия пола
базовая мера для энергоэффективного дома, защита от холода, идущего от грунта
[04]
Утепление межэтажного перекрытия
повышение звукоизоляции между этажами и оптимизация теплового контура
[05]
Черновой пол (настил ЦСП)
создание прочного и ровного основания для укладки финишных напольных покрытий
[06]
Обшивка каркасных стен имитацией бруса
готовое эстетическое решение для внутренних стен, не требующее дальнейшей отделки

Выбирая «Вятский лес-ТМН», вы выбираете не просто дом или баню, а надежную технологию, проверенные материалы и финансовую безопасность сделки
поможем выбрать проект и материалы,
ответим на вопросы













