Архитектурная концепция.
Этот проект создан для тех, кто ценит и личное пространство, и возможность принимать гостей. Его продуманная планировка «распашонка» и две отдельные зоны на свежем воздухе делают дом идеальным не только для пары, но и для одного человека — будь то холостяк, ценящий свой уют, пенсионер, желающий удобства на одном уровне, или дачник, любящий принимать друзей. Это умный формат, где каждый квадратный метр работает именно на ваш образ жизни.
КЛЮЧЕВЫЕ ОСОБЕННОСТИ,
которые вы полюбите
[01]
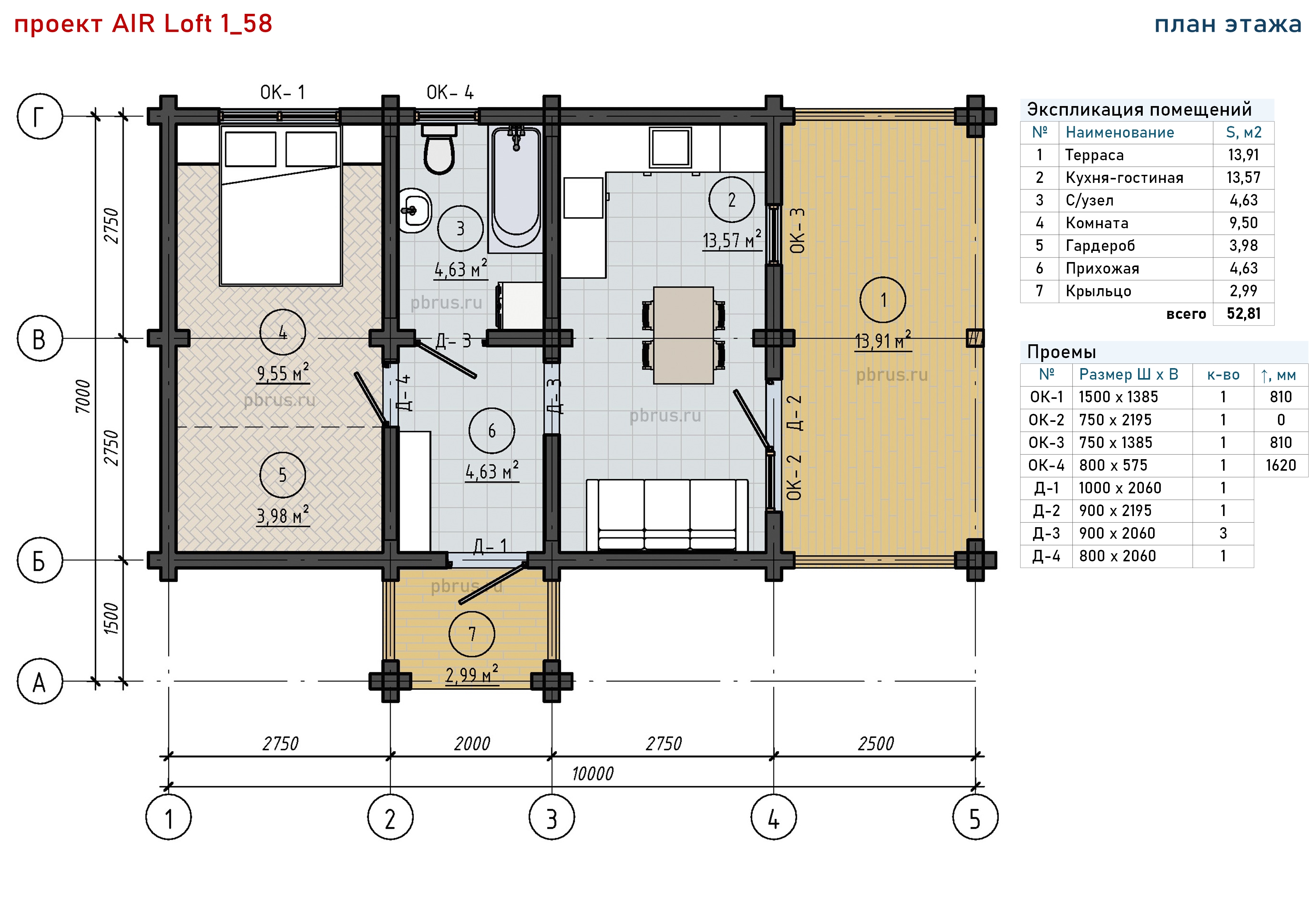
раздельные входы в жилую и общую зоны обеспечивают личный комфорт для пары и идеально подходят для одного человека, четко разделяя приватную спальню и гостевую зону. Вы можете отдыхать в тишине, не беспокоясь о внезапных визитах, или принимать гостей, не затрагивая личное пространство
[02]
просторная терраса (13,75 м²) и уютное крыльцо (3 м²) — это готовые сценарии для отдыха. Оба элемента конструктивно подготовлены для будущего остекления и утепления, что позволит вам со временем создать дополнительную всесезонную комнату, оранжерею или расширенную прихожую
[03]
AIR Loft 1_58
площадь - 58 м²
планировка - 1 вариант
прямая сделка - от 3 200 000 ₽
в ипотеку - от 3 560 000 ₽
* Стены вашего дома возводятся из исключительно качественного материала — профилированного бруса камерной сушки из кировской сосны. Это гарантирует:
- идеальную геометрию и плотную стыковку венцов
- минимальную усадку, что позволяет быстрее перейти к отделке
- высокую готовность к монтажу и долговечность конструкции

ВАШ ДОМ В ИДЕАЛЬНОЙ ПАЛИТРЕ
Чтобы вы могли сразу увидеть и оценить будущий дом, мы подготовили 8 тщательно проработанных вариантов цветовых решений. Каждый вариант — это гармоничная комбинация оттенков фасада, кровли, оконных конструкций и элементов отделки, подобранная нашими дизайнерами.
Готовые концепции. Вам не нужно тратить время на подбор и согласование цветов — мы предлагаем проверенные эстетичные решения.
Профессиональный подбор. Все сочетания гарантированно гармоничны, устойчивы к выцветанию и соответствуют актуальным тенденциям.
Легкий выбор. Просто выберите понравившийся образ из каталога — мы точно воспроизведем его при строительстве.
ВАРИАНТЫ ПЛАНИРОВОК
[01]
[02]
[03]
[04]
AIR Loft 1_58
Дом от «Вятский лес-ТМН» это
[01]
НАТУРАЛЬНЫЙ ПРОФИЛИРОВАННЫЙ БРУС КАМЕРНОЙ СУШКИ
[02]
ТЕХНОЛОГИЯ, КОТОРАЯ ЭКОНОМИТ ВАШЕ ВРЕМЯ
— минимальное количество трещин и деформаций;
— крайне низкая усадка конструкции;
— безупречная геометрия для быстрого и точного монтажа;
— фундаментальная долговечность всей постройки.
[03]
БЕЗОПАСНАЯ ПОКУПКА В ИПОТЕКУ ЧЕРЕЗ ЭСКРОУ-СЧЕТА
[04]
АВТОРСКИЕ ПРОЕКТЫ С ПРОДУМАННОЙ ФИЛОСОФИЕЙ
АДАПТАЦИЯ ПОД ВАШ БЮДЖЕТ
В нашем офисе вы сможете детально адаптировать проект под свои задачи и финансовые возможности. Мы предлагаем выбор:
[01]
конструктивные решения для перекрытий и стен
[02]
качество и стоимость отделочных и строительных материалов
[03]
степень наполнения инженерными системами
[04]
уровень готовности — от «теплого контура» до полной подготовки под чистовую отделку
ОПЦИОНАЛЬНЫЕ РАБОТЫ
для индивидуальной комплектации
В любом проекте можно выбрать объем необходимых к выполнению работ. Самостоятельно определить конфигурацию, соответствующую задачам и бюджету строительства.
[01]
Устройство внутренних стен/перегородок (каркас)
формирование внутренней планировки без изменения несущих конструкций
[02]
Утепление мансарды
базовая мера для энергоэффективного дома. Создание комфортного температурного режима в мансардном этаже и снижение будущих затрат на отопление
[03]
Утепление перекрытия пола
базовая мера для энергоэффективного дома, защита от холода, идущего от грунта
[04]
Утепление межэтажного перекрытия
повышение звукоизоляции между этажами и оптимизация теплового контура
[05]
Черновой пол (настил ЦСП)
создание прочного и ровного основания для укладки финишных напольных покрытий
[06]
Обшивка каркасных стен имитацией бруса
готовое эстетическое решение для внутренних стен, не требующее дальнейшей отделки

Выбирая «Вятский лес-ТМН», вы выбираете не просто дом, а надежную технологию, проверенные материалы и финансовую безопасность сделки
поможем выбрать проект и материалы,
ответим на вопросы


















