Архитектурная концепция.
Этот проект — воплощение идеи «всё необходимое и ничего лишнего». Компактный, энергоэффективный и невероятно уютный дом, где каждый метр спроектирован с максимальной пользой. Высокие мансардные потолки и большая терраса создают ощущение простора, превращая небольшое жилье в полноценное личное пространство для пары или человека, ценящего самостоятельность и комфорт.
КЛЮЧЕВЫЕ ОСОБЕННОСТИ,
которые вы полюбите
[01]
[02]
[03]
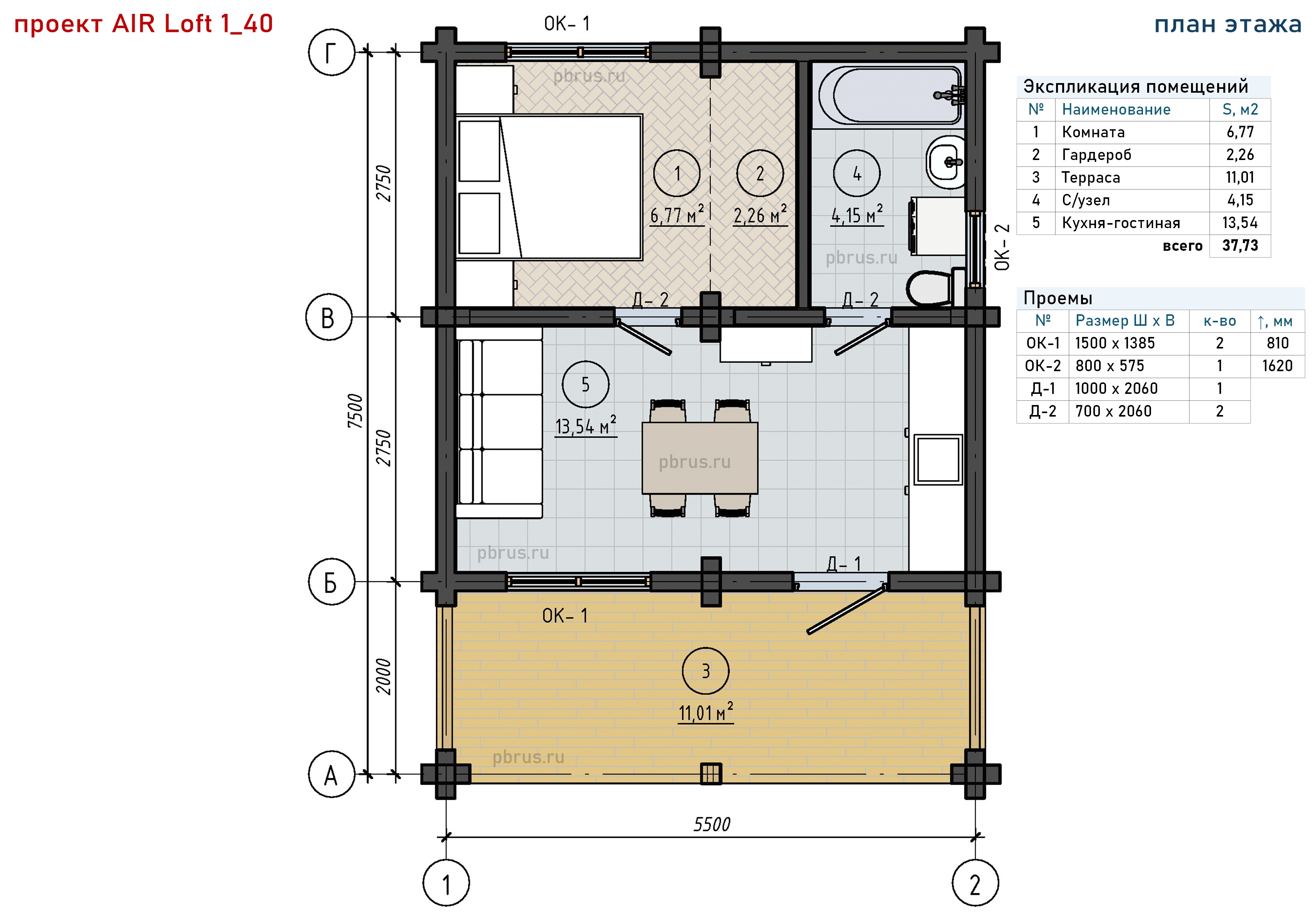
AIR Loft 1_40
площадь - 41,25 м²
планировка - 1 вариант
прямая сделка - от 2 240 000 ₽
в ипотеку - от 2 490 000 ₽
* Стены вашего дома будут возведены из исключительно качественного материала — профилированного бруса камерной сушки из кировской сосны. Это гарантирует:
- идеальную геометрию и плотную стыковку венцов
- минимальную усадку, что позволяет быстрее перейти к отделке
- высокую готовность к монтажу и долговечность конструкции.

ВАШ ДОМ В ИДЕАЛЬНОЙ ПАЛИТРЕ
Чтобы вы могли сразу увидеть и оценить будущий дом, мы подготовили 8 тщательно проработанных вариантов цветовых решений. Каждый вариант — это гармоничная комбинация оттенков фасада, кровли, оконных конструкций и элементов отделки, подобранная нашими дизайнерами.
Готовые концепции. Вам не нужно тратить время на подбор и согласование цветов — мы предлагаем проверенные эстетичные решения.
Профессиональный подбор. Все сочетания гарантированно гармоничны, устойчивы к выцветанию и соответствуют актуальным тенденциям.
Легкий выбор. Просто выберите понравившийся образ из каталога — мы точно воспроизведем его при строительстве.
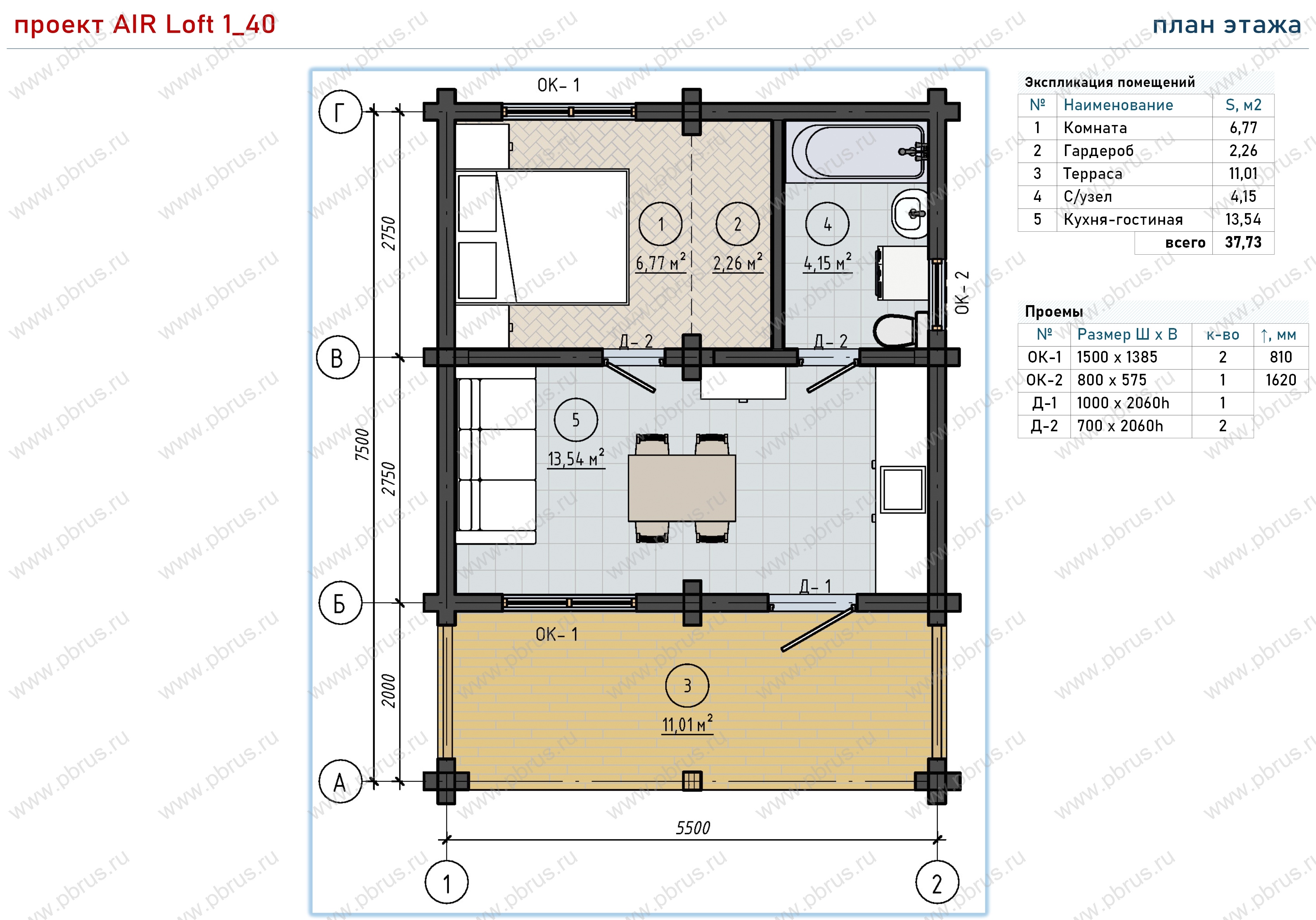
ВАРИАНТЫ ПЛАНИРОВОК
Планировка продумана до мелочей для жизни 1-2 человек.
[01]
[02]
[03]
[04]
спроектирован так, чтобы вместить всю необходимую сантехнику и остаться комфортным.
AIR Loft 1_40
Дом от «Вятский лес-ТМН» это
[01]
НАТУРАЛЬНЫЙ ПРОФИЛИРОВАННЫЙ БРУС КАМЕРНОЙ СУШКИ
[02]
ТЕХНОЛОГИЯ, КОТОРАЯ ЭКОНОМИТ ВАШЕ ВРЕМЯ
— минимальное количество трещин и деформаций;
— крайне низкая усадка конструкции;
— безупречная геометрия для быстрого и точного монтажа;
— фундаментальная долговечность всей постройки.
[03]
БЕЗОПАСНАЯ ПОКУПКА В ИПОТЕКУ ЧЕРЕЗ ЭСКРОУ-СЧЕТА
[04]
АВТОРСКИЕ ПРОЕКТЫ С ПРОДУМАННОЙ ФИЛОСОФИЕЙ
АДАПТАЦИЯ ПОД ВАШ БЮДЖЕТ
В нашем офисе вы сможете детально адаптировать проект под задачи и финансовые возможности. Мы предлагаем выбрать:
[01]
конструктивные решения для перекрытий и стен
[02]
качество и стоимость отделочных и строительных материалов
[03]
степень наполнения инженерными системами
[04]
уровень готовности — от «теплого контура» до полной подготовки под чистовую отделку
ОПЦИОНАЛЬНЫЕ РАБОТЫ
для индивидуальной комплектации
В любом проекте можно выбрать объем необходимых к выполнению работ. Самостоятельно определить конфигурацию, соответствующую задачам и бюджету строительства.
[01]
Устройство внутренних стен/перегородок (каркас)
формирование внутренней планировки без изменения несущих конструкций
[02]
Утепление мансарды
базовая мера для энергоэффективного дома. Создание комфортного температурного режима в мансардном этаже и снижение будущих затрат на отопление
[03]
Утепление перекрытия пола
базовая мера для энергоэффективного дома, защита от холода, идущего от грунта
[04]
Утепление межэтажного перекрытия
повышение звукоизоляции между этажами и оптимизация теплового контура
[05]
Черновой пол (настил ЦСП)
создание прочного и ровного основания для укладки финишных напольных покрытий
[06]
Обшивка каркасных стен имитацией бруса
готовое эстетическое решение для внутренних стен, не требующее дальнейшей отделки

Выбирая «Вятский лес-ТМН», вы выбираете не просто дом, а надежную технологию, проверенные материалы и финансовую безопасность сделки
поможем выбрать проект и материалы,
ответим на вопросы


















